Réf : 4638/2VA

Hyères (83400) HYERES CENTRE DANS RESIDENCE DE PRESTIGE

4 Pièce(s)
3 Chambre(s)
1 Salle(s) de bain

Les infos Essentielles

Caractéristiques Valeurs
Code postal 83400
Surface habitable (m²) 117,65 m²
Surface loi Carrez (m²) 117,65 m²
Nombre de chambre(s) 3
Caractéristiques Valeurs
Nombre de pièces 4
Etage 1
Nombre de niveaux 1
Ascenseur OUI
Caractéristiques Valeurs
Vue Jardin
Nb de salle de bains 1
Nb de salle d'eau 1
Cuisine Américaine
Caractéristiques Valeurs
Interphone OUI
Balcon NON
Terrasse OUI
Murs mitoyens 2
Caractéristiques Valeurs
Cave NON
Nombre de parking 1
Exposition Sud
Année de construction 2025
Caractéristiques Valeurs
Copropriété OUI
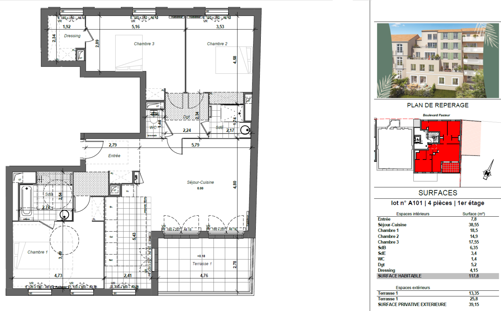
Lot n° A101
nombre de lots 12
plan de sauvegarde NON
Caractéristiques Valeurs
statut du syndic pas de procédure en cours

A 2 pas du Forum du Casino et des jolies rues piétonnes et commerçantes du centre. Dans cette petite résidence neuve de 4 appartements de standing, nous vous proposons au 1er étage avec ascenseur un spacieux T4 de 117,80 m² avec terrasse sud, une vue sur le beau jardin méditerranéen de la résidence et une place de parking privative - Accès PMR - Livraison Fin 2026

Découvrir le bien

Les infos Financières

Prix de vente 774 800 €
Les honoraires d'agence seront intégralement à la charge du vendeur  

Nos outils

Imprimer

Les infos Energetiques

DPE GES
DPE non concerné
Rez de chaussée
entrée 7.80 m²

Séjour salon cuisine 38.55 m²

chambre 18.50 m²

chambre 14.90 m²

chambre 17.55 m²

salle de bain 6.35 m²

salle d'eau 3.40 m²

WC 1.40 m²

5.20 m²

dressing 4.15 m²

terrasse 13.35 m²

Intéressé(e) par Ce bien ?

* Champ obligatoire

Les informations recueillies sur ce formulaire sont enregistrées dans un fichier informatisé par La Boite Immo agissant comme Sous-traitant du traitement pour la gestion de la clientèle/prospects de l'Agence / du Réseau qui reste Responsable du Traitement de vos Données personnelles. La base légale du traitement repose sur l'intérêt légitime de l'Agence / du Réseau. Elles sont conservées jusqu'à demande de suppression et sont destinées à l'Agence / au Réseau. Conformément à la loi « informatique et libertés », vous disposez des droits d’accès, de rectification, d’effacement, d’opposition, de limitation et de portabilité de vos données. Vous pouvez retirer votre consentement à tout moment en contactant directement l’Agence / Le Réseau. Consultez le site https://cnil.fr/fr pour plus d’informations sur vos droits. Si vous estimez, après avoir contacté l'Agence / le Réseau, que vos droits « Informatique et Libertés » ne sont pas respectés, vous pouvez adresser une réclamation à la CNIL. Nous vous informons de l’existence de la liste d'opposition au démarchage téléphonique « Bloctel », sur laquelle vous pouvez vous inscrire ici : https://www.bloctel.gouv.fr Dans le cadre de la protection des Données personnelles, nous vous invitons à ne pas inscrire de Données sensibles dans le champ de saisie libre.
Ce site est protégé par reCAPTCHA, les Politiques de Confidentialité et les Conditions d'Utilisation de Google s'appliquent.
contacter l'agence
Ces biens peuvent aussi vous intéresser
Hyères (83400)

HYERES CENTRE-VILLE RESIDENCE DE PRESTIGE

Nous suivre sur
Notre agence
BORGETTO IMMOBILIER à HYERES
66 Avenue Godillot
04 94 00 54 01
borgettoimmo@wanadoo.fr